1-к. квартира, 30.4 м², 3/5 эт.

2 660 000₽

Характеристики

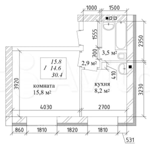
  • Общая площадь: 30.4 м²
  • Этаж: 3
  • Комнат в квартире: 1
  • Жилая площадь: 15.8 м²
  • Тип дома: Кирпичный
  • Площадь кухни: 8.2 м²
  • Этажей в доме: 5

Описание

ПОДСОЛНУХИ
Там, где солнце круглый год
О ПРОЕКТЕ
«Подсолнухи» — это уникальный проект. Малоэтажный жилой комплекс сочетает в себе все преимущества современного, комфортного и доступного жилья. Он расположен в самой экологически чистой зоне города Кемерово, в новом, стремительно развивающемся микрорайоне Верхнего Бульвара.

Дома возводятся с использованием качественных строительных материалов и новейших технологий. Проектом предусмотрено большое количество парковочных мест. Уютные закрытые дворы обеспечат жителям спокойствие и безопасность.

Развитая инфраструктура микрорайона включает множество объектов: детские сады, школы, кафе, магазины, торговые центры. Неподалёку расположены Губернский центр спорта «Кузбасс», бассейн «Сибирь», студенческий городок с престижными вузами и активно строящийся культурный кластер. В шаговой доступности остановки общественного транспорта, а развитая сеть магистралей позволит быстро добраться в любую точку города.

Вблизи жилого комплекса много детских площадок и мест для прогулок. Пешеходная зона Бульвара Строителей является одной из живописнейших в городе.

Адрес

мкр. №74, д. 18 Секция Б


Сеть городских порталов: Купить квартиру В Евпатории