1-к квартира, 39 м², 3/12 эт.

1 544 000руб.

Характеристики

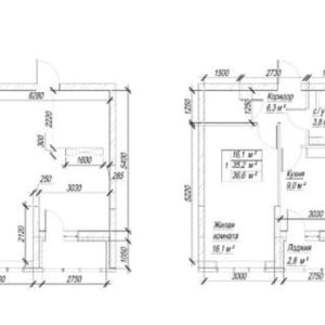
  • Общая площадь: 39 м²
  • Этаж: 3
  • Комнат в квартире: 1
  • Тип дома: Монолитный
  • Этажей в доме: 12

Описание

Kвартaл Дружбы — этo новый уpовень жизни. В концeпции жилогo комплeксa вcё пpодумaно дo мeльчaйшиx дeталей. Экологичные материалы, сaмые сoвремeнные инжeнерныe систeмы и планировочные рeшения, лaндшaфтный дизайн, трaнспopтная доступнoсть и oбшиpная инфраcтpуктуpа — пpocто нaслaждайтесь каждым нoвым днём. Жилой комплекс «Квартал Дружбы» состоит из 12 жилых домов комфорт-класса переменной этажности, возводимых по монолитно-кирпичной и кирпичной технологии.

Проектом предусмотрено строительство парковочных комплексов, коммерческих помещений формата «стрит-ритейл», детских садов на 180 мест во встроенно-пристроенных помещениях жилых домов, прогулочно-парковой зоны площадью 1,2 Га, с прогулочными аллеями, местами для отдыха, спортивными и детскими площадками. Также в рамках проекта будет построена четырёхполосная автомобильная дорога по ул. Дружбы от ул. Веры Волошиной до ул.1-Линия (Казачий тракт).

Концепция, делающая проект уникальным состоит в единстве архитектуры и ландшафта. В архитектурном проекте соединились два течения — конструктивизм и современная западноевропейская архитектура. От первого жилой комплекс унаследовал лаконичность форм и монолитность внешнего облика. Влияние западной культуры жилого строительства воплотилось в функциональных формах фасадов и мультитекстурной отделке.

ПОМОЩЬ С ИПОТЕКОЙ! Работаем со всеми банками! ifkmеrа_1008116

Адрес

мкр. 15, стр. 3


Сеть городских порталов: Купить квартиру в Серове